伊勢崎市今泉1丁目

販売価格 28,800,000
物件外観
物件外観
リビング①
リビング①
リビング②
リビング②
主寝室
主寝室
パウダールーム
パウダールーム
1階トイレ
1階トイレ
バスルーム
バスルーム
物件外観
リビング①
リビング②
主寝室
パウダールーム
1階トイレ
バスルーム
  • 浴室乾燥機
  • ウォークインクローゼット
  • 当社施工
  • TVドアホン
  • シャワートイレ
  • 太陽光発電システム
  • 照明付き
  • ビルトイン食器洗浄機
  • 電動シャッター
  • スムストック認定
  • スマートキー
  • セミオ-プン対面キッチン
  • 整形地
  • 小学校徒歩10分以内
  • 駐車場3台分以上
  • パントリー
  • 住宅性能評価(設計・建設)
  • IHクッキングヒーター
  • 玄関収納
  • バリアフリー
  • 駅徒歩10分以内
  • エコキュート
  • オール電化
  • 24時間換気システム
■2022年6月トヨタウッドユーホーム施工の築浅美邸!
  • □太陽光パネル4.66kwh搭載のオール電化住宅
  • ■住宅性能評価証明書・BELS評価書(ZEH)取得済
  • □商業施設充実エリアで市役所も近く生活便利
  • ■国道354号線、462号線へもアクセス良好
  • □東武伊勢崎線【新伊勢崎】駅まで徒歩10分

地図・周辺環境

教育
  • 伊勢崎市立茂呂小学校 約1400m
  • 伊勢崎市立第一中学校 約1100m
商業施設
  • セブンイレブン今泉一丁目店 約300m
  • 星乃珈琲店 伊勢崎店 約450m
  • ベイシアスーパーマーケット伊勢崎BP店 約2000m
  • セキチュー 伊勢崎茂呂店 約2800m
病院
  • 伊勢崎市民病院 約3200m
  • 鈴木医院 約500m
  • 飯野歯科クリニック 約110m
公共施設
  • 伊勢崎市役所 約650m
  • 中央労働金庫 伊勢崎支店 約200m
  • 群馬銀行 伊勢崎支店 約1500m
  • 伊勢崎郵便局 約1900m

物件概要

物件番号
B-1260
物件名
伊勢崎市今泉1丁目
所在地
伊勢崎市今泉一丁目
交通
東武伊勢崎線『新伊勢崎』駅
学区
伊勢崎市立茂呂小学校・伊勢崎市立第一中学校
用途地域
第一種住居地域
地目
宅地
現況
入居中
駐車場
3台(1台は車種サイズ制限有)
建ぺい率
60%
容積率
200%
土地面積
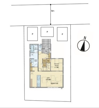
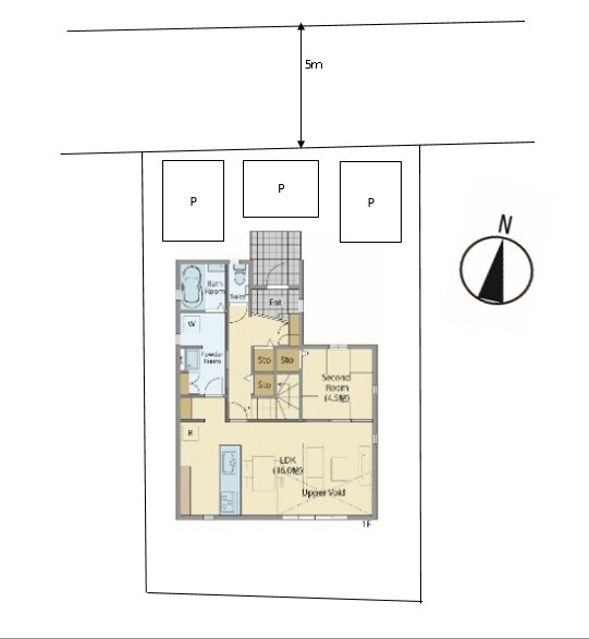
177.27m2(53.62坪) 
建物面積
111.10m2(33.54坪) 
構造
木造スレート葺2階建
販売価格
28,800,000円
引渡時期
相談
設備
公営水道
公共下水
都市ガス
建築年月
2022年6月
接道
北側 約5.0m
私道負担
なし
法令上の制限
景観法、宅地造成工事規制区域
取引態様
専任媒介
間取り
4LDK
備考
1. 建物施工:トヨタウッドユーホーム株式会社
2. 物件所在:ウッドユータウン伊勢崎今泉1丁目内
3. 建物保証:メーカー保証継承可能【¥22,000(税込)】買主負担
4. 車庫台数:3台(内、1台車種サイズ制限有)
5. 引渡時期:2027年1月以降希望(時期の調整については要相談)
情報更新日
2026年4月17日
次回更新予定日
2026年5月17日

ご返済例

  • 販売価格/2,880万円(非課税)
  • 頭金/0万円
  • 借入金額/2,880万円
  • 金利/1.000%(変動)
月々返済 81,298円(元金/2,880万円) ボーナス払い(年0回)0円(元金/0万円)
  • 返済例は当社提携地方銀行ローン、返済期間35年で計算しています。
  • 返済例は概算です。諸条件により内容は異なります。
  • 別途諸経費等が必要になります。
  • 金利は2026年4月10日現在のものです。

お問い合わせ

  • 028-600-4455 スマートフォンではタップで
    発信できます
  • 見学予約 ご見学希望の方は
    事前予約でスムーズにご案内致します
  • 資料請求 物件の詳しい資料を
    お届けします

関連リンク