上三川町大字西汗(本郷台団地)

販売価格 19,800,000(非課税)
外観 東南側より
外観 東南側より
玄関ホール
玄関ホール
1階ダイニングキッチン
1階ダイニングキッチン
1階南和室(続き間)
1階南和室(続き間)
1階南東洋室
1階南東洋室
1階南東洋室収納
1階南東洋室収納
1階北東洋室
1階北東洋室
1階北東洋室収納
1階北東洋室収納
1階洗面室
1階洗面室
1階浴室
1階浴室
1階トイレ
1階トイレ
2階LDK
2階LDK
2階東南洋室
2階東南洋室
2階南西和室
2階南西和室
2階洗面室
2階洗面室
2階浴室
2階浴室
インナーバルコニーを採用しております
インナーバルコニーを採用しております
東側前面道路
東側前面道路
北側遊歩道も4m幅ございます
北側遊歩道も4m幅ございます
ふざかし公園
ふざかし公園
外観 東南側より
玄関ホール
1階ダイニングキッチン
1階南和室(続き間)
1階南東洋室
1階南東洋室収納
1階北東洋室
1階北東洋室収納
1階洗面室
1階浴室
1階トイレ
2階LDK
2階東南洋室
2階南西和室
2階洗面室
2階浴室
インナーバルコニーを採用しております
東側前面道路
北側遊歩道も4m幅ございます
ふざかし公園
  • 都市ガス
  • シャワートイレ
  • 照明付き
  • スーパー徒歩10分以内
  • 即入居可
  • 整形地
  • 駐車場3台分以上
  • 納戸
  • 角地
  • 複層ガラス
  • エアコン付き
■敷地100坪、東側道路に北側歩道+公園で開放感あり!
  • □約52坪の6LDK!2世帯向けのゆとりのある間取り!
  • ■公園やオータニが近く、生活環境良好です!
  • □新4号国道や上三川ICも近く、交通のアクセス良好!
  • ■2019年外壁塗装、2021年2階トイレ新品交換実施!

地図・周辺環境

教育
  • 本郷北小学校 約900m
  • 本郷中学校 約2800m
  • ふざかしおひさま保育園 約900m
商業施設
  • オータニ上三川店 約160m
  • カワチ薬品上三川インター店 約2000m
病院
  • JCHOうつのみや病院 約5600m
  • 本郷台医院 約500m
  • 上三川ファミリー歯科 約500m
公共施設
  • 宇都宮瑞穂郵便局 約3300m
  • 栃木銀行上三川支店 約5600m

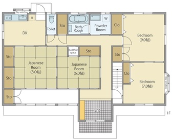
物件概要

物件番号
B-1117
物件名
上三川町大字西汗(本郷台団地)
所在地
上三川町大字西汗
交通
JR宇都宮線『雀宮』駅まで徒歩約65分※
学区
本郷北小学校・本郷中学校
用途地域
第一種低層住居専用地域
地目
宅地
現況
空家
駐車場
4台(縦列含む)
建ぺい率
50%
容積率
80%
土地面積
331.22m2(100.19坪) 
建物面積
173.47m2(52.47坪) 
構造
木造かわらぶき2階建
販売価格
19,800,000円(非課税)
引渡時期
即時
設備
公営水道
公共下水
都市ガス
建築年月
1998年3月
接道
北側 約4m、東側 約12m
私道負担
なし
取引態様
一般媒介
間取り
6LDK
備考
※「本郷台」バス停まで徒歩約2分(約160m)
・契約不適合責任免責での販売(現況引渡し)
・1階洋室のペアガラスに結露が発生している箇所がございます。
情報更新日
2025年10月4日
次回更新予定日
2025年11月4日

ご返済例

  • 販売価格/1,980万円(非課税)
  • 頭金/0万円
  • 借入金額/1,980万円
  • 金利/1.000%(変動)
月々返済 55,892円(元金/1,980万円) ボーナス払い(年0回)0円(元金/0万円)
  • 返済例は当社提携地方銀行ローン、返済期間35年で計算しています。
  • 返済例は概算です。諸条件により内容は異なります。
  • 別途諸経費等が必要になります。
  • 金利は2023年10月26日現在のものです。

お問い合わせ

  • 028-600-4455 スマートフォンではタップで
    発信できます
  • 見学予約 ご見学希望の方は
    事前予約でスムーズにご案内致します
  • 資料請求 物件の詳しい資料を
    お届けします

あなたにおすすめの物件

関連リンク