会員限定

学区:小山城南小学校・小山城南中学校
| 物件名 | 楽園の森ひととのやヴィレッジ |
|---|---|
| 所在地 | 小山市神鳥谷字原ノ内1871-1、小山市大字塚崎字大シベ1494-1 他 |
| 交通 | おーバス「ひととのやヴィレッジ」停留所まで徒歩約1分〜4分 |
| 都市計画法区域区分 | 市街化調整区域 |
| 地目 | 宅地 |
| 建ぺい率 | 50% |
| 容積率 | 80% |
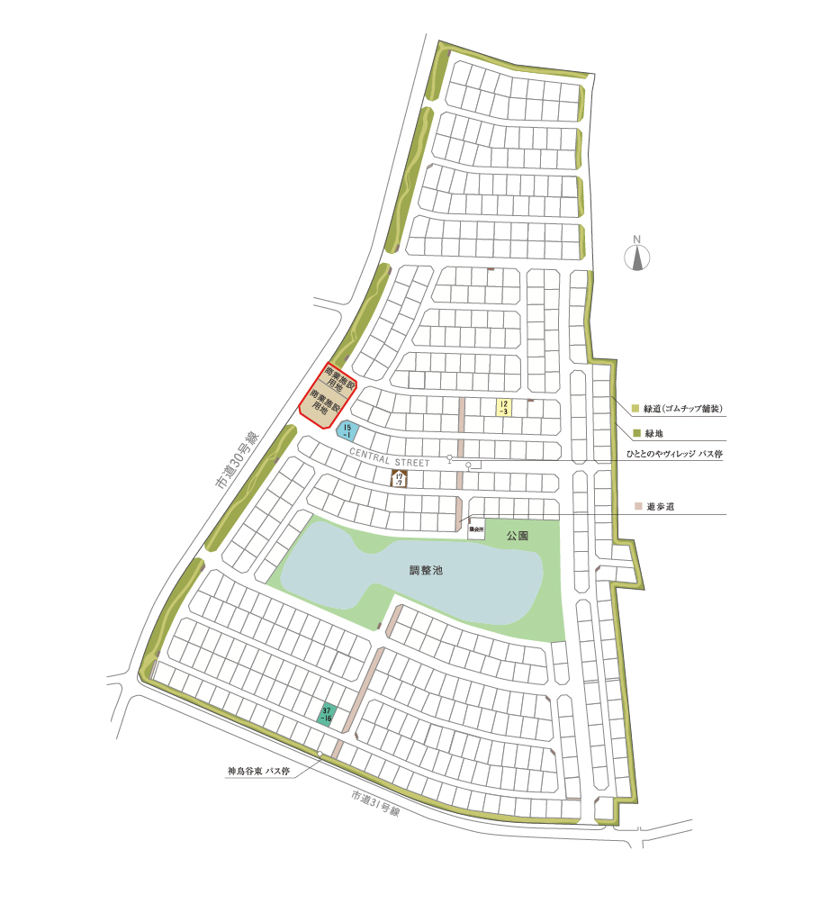
| 総区画数 | 158区画 |
| 今回販売区画数 | 2区画 |
| 開発許可申請番号 | 小山市指令建指第1701-020号(平成29年11月1日付) |
| 道路 | 主幹線道路=幅員12m・アスファルト舗装(内 歩道=幅員2.5m、両側、インターロッキング舗装)副幹線道路=幅員9m・アスファルト舗装(内 歩道=幅員2m、片側、インターロッキング舗装) |
| 設備 | 電気=東京電力、上水道=公営水道、し尿・雑排水=公共下水道、ガス=都市ガス 雨水=調整池および浸透施設併用、雨水桝は設置しない、宅地内雨水浸透槽=設置しない ゴミステーション=ゴミステーションは各収集エリアごとに設置 |
| 造成工事の完了予定年月 | 令和2年1月31日 |
| 自治会費 | 入会金=30,000円、管理費=500円/月(6,000円/年) |
| 教育施設 | 小山城南小学校・小山城南中学校 |
| 取引条件有効期限 | 2024年12月31日 |
| 売主 | トヨタウッドユーホーム株式会社 |
| 広告主の名称または商号 | トヨタウッドユーホーム株式会社 |
| 広告主の事務所の所在地 | 栃木県宇都宮市一ノ沢町256番地7 |
| 広告主の事務所の電話番号 | 028-627-7777(代表) |
| 宅建業法による免許番号 | 国土交通大臣(7)第5168号 |
| 所属団体名および公正取引協議会加盟事業者である旨 | (公社)栃木県宅地建物取引業協会 (公社)首都圏不動産公正取引協議会 |
| 販売区画数 | 1区画 |
|---|---|
| 土地面積 | 208.95m2 (63.20坪)1区画 |
| 販売価格 | 9,103,000円(1区画) |
| 水道加入金 | 口径20mmの場合150,700円(税込)※検査手数料別途要、口径25mmの場合302,500円(税込)※検査手数料別途要 |
| 建築条件付分譲地 | この土地は、土地売買契約締結後3ケ月以内にトヨタウッドユーホーム株式会社と住宅の建築請負契約を締結することを条件として販売します。この期間内に住宅建築請負契約が成立しない場合は、土地売買契約は白紙となり、お預りした金銭は全額速やかにお返しします。 |
| 建売住宅販売棟数 | 1棟 |
|---|---|
| 建売住宅販売価格(税込) | 35,900,000円(1区画) |
| 建売住宅土地面積 | 202.02m2 (61.11坪)1区画 |
| 建売住宅建物面積 | 112.61m2 (34.00坪)1区画 |
| 構造 | 木造枠組壁構法(ツーバイフォー) |
| 建築確認番号・建物完成年月 | 区画17-4 R06SHC118617 2024年12月完成予定 |
「最終更新日」2026/04/24、「次回更新予定日」2026/05/08
小山支店
〒323-0811 小山市犬塚1-23-5
0120-393-800
簡単登録で便利にお得にお家探し!


