建売住宅HOUSING

No1

販売価格(税込)/4,195.0万円

敷地面積/194.51m2(58.83坪)

建物面積/114.31m2(34.50坪)

完成時期(築年月):2026年7月予定

引渡可能時期:2026年7月下旬頃

  • 太陽光発電
  • オール電化
  • 24時間換気システム
  • ビルトイン食器洗浄機
  • 浄水器内蔵シャワー水栓
  • リビングエアコン
  • Low-E複層ガラス(全居室)
  • 全室LED照明
  • 室内物干
  • 電動シャッター
  • カメラ付インターフォン
  • スマートキー
  • 外部凍結防止立水栓
  • 高効率給湯機
  • 宅配BOX一体型ポスト
  • 電気自動車充電設備
  • クルマde給電

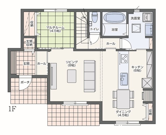
FLOOR PLANフロアプラン(間取り図)

LANDSCAPE全体区画図

  • 番号のみ:分譲土地
  • 建売住宅
  • 分譲モデルハウス
  • 電柱
  • ゴミステーション
  • 支柱
  • 支線
  • 防犯灯

ACCESS周辺環境のご案内

学区: 小学校:姿川第二  中学校:宮の原

  • 関東バス「砥上団地」停留所約550m~700m
  • JR日光線 鶴田駅約2,490m~2,610m
  • ドラッグストアコスモス鶴田店約1,750m~1,870m
  • 姿川第二小学校約1,210m~1,330m
  • 宮の原中学校約1,580m~1,700m
  • アルン保育園約230m~350m
  • まこと幼稚園約540m~690m
  • ニトリ宇都宮鶴田店約1,370m~1,490m
  • 高橋外科内科約710m~830m
  • 中鶴田幼稚園約1,250m~1,370m
  • ファミリーマート宇都宮砥上町店約930m~1,050m
  • カワチ薬品三の沢店約1,360m~1,570m
  • マツモトキヨシ宇都宮鶴田店約1,120m~1,240m
  • 業務スーパー鶴田店約1,120m~1,240m
  • 鷲谷記念病院約1,180m~1,330m
  • 北原3号児童公園約60m~270m
  • Seriaヨークタウン鶴田店約1,150m~1,270m
  • スターバックスコーヒー約1,220m~1,340m

LOCATION周辺施設

  • JR 日光線「鶴田駅」

    約2,490m~2,610m

  • 認定こども園 まこと幼稚園

    約540m~690m

  • 姿川第二小学校

    約1,210m~1,330m

  • 宮の原中学校

    約1,580m~1,700m

  • 鷲谷記念病院

    約1,180m~1,330m

  • 北原3 号児童公園

    約60m~270m

  • 中鶴田幼稚園

    約1,250m~1,370m

  • 業務スーパー 鶴田店

    約1,120m~1,240m

  • ヨークベニマル 鶴田店

    約1,060m~1,180m

  • フードオアシスオータニ 明保店

    約1,100m~1,250m

  • ファミリーマート 宇都宮砥上町店

    約930m~1,050m

  • ニトリ 宇都宮鶴田店

    約1,370m~1,490m

  • アルン保育園

    約230m~350m

CONTACT

トヨタホームカンパニー栃木営業所
〒320-8541 栃木県宇都宮市一ノ沢町256-7

0120-154-500