建売住宅HOUSING

エクステリア

No3

販売価格(税込)/3,640.0万円

敷地面積/227.81m2(68.91坪)

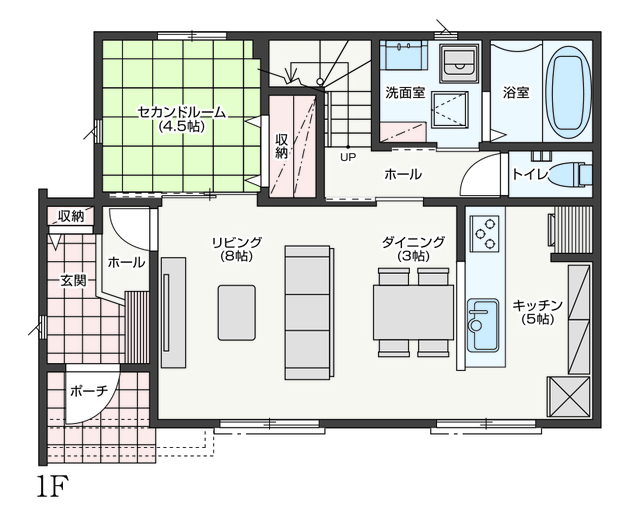
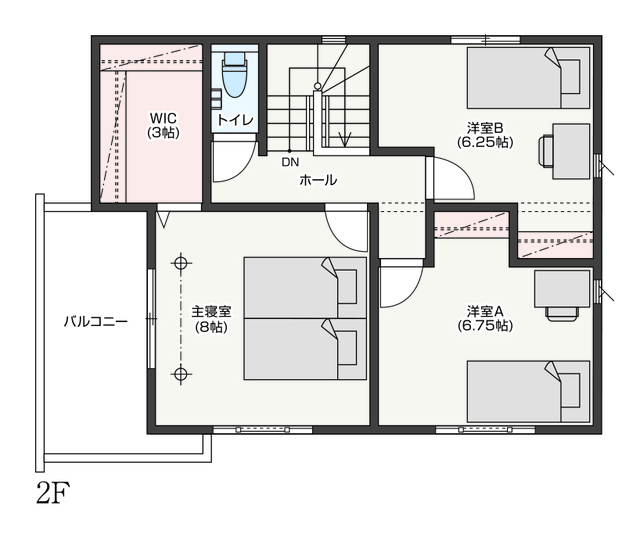
建物面積/106.84m2(32.26坪)

完成時期(築年月):2026年3月完成

  • 太陽光発電
  • オール電化
  • 24時間換気システム
  • ビルトイン食器洗浄機
  • リビングエアコン
  • Low-E複層ガラス(全居室)
  • 室内物干
  • カメラ付インターフォン
  • 宅配BOX一体型ポスト
  • カードキー

FLOOR PLANフロアプラン(間取り図)

INTERIORインテリア

リビングダイニング
リビングダイニング
リビングダイニング
キッチン
1階 セカンドルーム
浴室
トイレ
洗面室
2階 主寝室
2階 洋室

LANDSCAPE全体区画図

  • 番号のみ:分譲土地
  • 建売住宅
  • 分譲モデルハウス
  • 電柱
  • ゴミステーション
  • 支柱
  • 支線
  • 防犯灯

ACCESS周辺環境のご案内

学区:小山市立城北小学校/小山市立桑中学校

  • 小山市立城北小学校約920~1,010m(徒歩約18~19分)
  • 小山市立桑中学校約2,300~2,380m(徒歩約29~30分)
  • 喜沢公園約190~270m(徒歩2~3分)
  • ヨークベニマル小山ゆうえんち店約940~1,020m(徒歩18~19分)
  • たいらや本郷店約2,000~2,080m(徒歩26~27分)
  • ウエルシア小山城北店約390~470m(徒歩約4~5分)
  • スギドラック小山喜沢店約990~1,070m(徒歩約11~12分)
  • セブンイレブン小山城北店約450~530m(徒歩約6~7分)
  • ローソン小山城北三丁目店約580~660m(徒歩約8~9分)
  • ダイソーハーヴェストウォーク小山店約1,300~1,380m(徒歩約17~18分)
  • ニトリ小山店約1,100~1,180m(徒歩約15~16分)
  • おやまゆうえんハーヴェストウォーク約1,100~1,180m(徒歩約15~16分)
  • 岩井歯科クリニック約320~400m(徒歩約4~5分)
  • あらい内科クリニック約400~480m(徒歩約6~7分)
  • 光南健診クリニック約1,100~1,180m(徒歩約15~16分)
  • おやまゆうえんアイクリニック約1,100~1,180m(徒歩約15~16分)
  • おーバス【小山市コミュニティ/喜沢南】約560~640m(徒歩約8~9分)
  • 小山駅約2,500~2,580m(徒歩約35~36分)

CONTACT

トヨタホームカンパニー栃木営業所
〒320-8541 栃木県宇都宮市一ノ沢町256-7

0120-154-500